Ter. residenziale in vendita

Campomarino, Via Lecce - Lido Campomarino
Informazioni in agenzia
4384 Mq 4384 Mq
2 bagni 2 bagni

Ter. residenziale in vendita

Campomarino, Via Lecce - Lido Campomarino

Descrizione annuncio

Terreno edificabile in vendita - Via Lecce, Campomarino Lido.

Disponibile ampio terreno edificabile in posizione strategica, ideale per la realizzazione di un complesso residenziale moderno e funzionale.

Caratteristiche principali:
-Distanza dal mare 200 metri
-Superficie ampia e regolare, facilmente sfruttabile
-Accesso diretto da strada principale
-Zona tranquilla e ben collegata ai principali servizi
-Possibilità di realizzare più unità abitative con giardino e posti auto
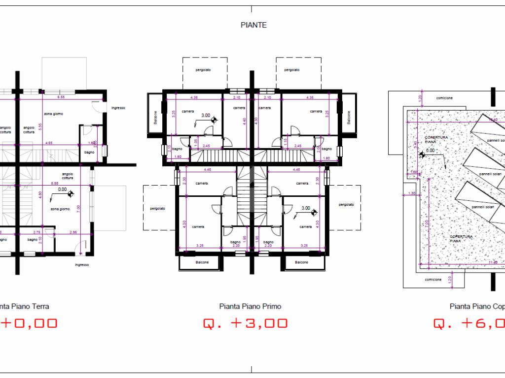
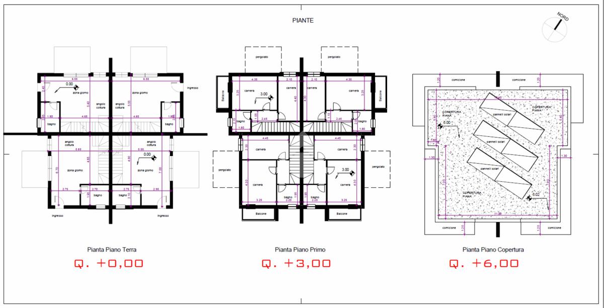
-progetto per la realizzazione di 16 unità abitative indipendenti di 60 mq su due livelli con giardino e a pochi minuti dai principali servizi.

Un intervento residenziale pensato per offrire comfort, efficienza e qualità costruttiva in un contesto tranquillo e ben collegato.


Soluzione ideale per imprese edili, costruttori e investitori che vogliono sviluppare un progetto immobiliare di qualità.

Posizione vantaggiosa in contesto residenziale in forte crescita.

Contattaci al 3401768358 per maggiori informazioni.

Mostra tutto

Nelle vicinanze

Trasporto pubblico Trasporto pubblico
stazione di Campomarino
stazione di Campomarino
690 m
Marinelle
Marinelle
2,2 Km
Rio Vivo
Rio Vivo
2,8 Km
Scuole Scuole
Scuole
1,6 Km
Supermercati Supermercati
Eurospin
700 m
Lidl
1,5 Km
Ristoranti Ristoranti
Lido Rosa dei Venti di Moscatiello Fabio
440 m
Lido Oasi Beach
570 m
Dancing Garden
690 m
Conchiglia Azzurra
860 m
Mostra tutto

Caratteristiche

Rif.:
61119315
Piano:
Terra di 1
Totale piani:
1
Balconi:
1
Camere da letto:
2
Arredamento:
Assente
Mostra tutto
Prezzo Prezzo
Informazioni in agenzia
Spese annue Spese annue
€ 0
Proponi il tuo prezzoProponi il tuo prezzo

Classe Energetica

Questo immobile è esente da classe energetica
Anno di costruzione:
1000
Riscaldamento:
Assente

Ti interessa visionare l'immobile?

Fissa un appuntamento  Fissa un appuntamento

Richiedi informazioni

Clicca su Leggi per aprire l'informativa
* Questi campi sono obbligatori
Affiliato
Di.bi.ca. Srl
Via De Gasperi, 85 86042 Campomarino (CB)

Il nostro staff


  • Michele Caposiena
    Responsabile

  • Pierluigi Peluso Cassese
    Affiliato

  • Lavinia Bucci
    Collaboratrice

  • Daniele Antenucci
    Collaboratore

  • Annalisa Piermarino
    Coordinatrice
Via De Gasperi, 85 86042 Campomarino (CB)
Zona: CAMPOMARINO COSTA ADRIATICA-MOLISE
Mostra su mappa
Orari: Dal lunedì al venerdì : 09:00 -13:00 /16:00 - 20:00 sabato: dalle 9:00 -13.00 SABATO POMERIGGIO E DOMENICA CHIUSO.
Affiliato
Di.bi.ca. Srl
Via De Gasperi, 85 86042 Campomarino (CB)

2026 Tecnocasa Franchising S.p.A. - P. IVA 08365160152 - Via Monte Bianco 60/A 20089 Rozzano (MI). Ogni agenzia ha un proprio titolare ed è autonoma. Privacy policy | Policy utilizzo | Cookie policy